Građevinsko zemljište s pogledom na more u Istri – Živite tamo gdje drugi odmaraju
-
Šifra :00347
-
Lokacija :Marčana
-
Površina parcele :cca 729 m2
-
Udaljenost od centra :0 m
-
Udaljenost od mora :0 m
(za pregovaranje) 125.000 €
ZNAČAJKE
- Pogled na more : Da
Poštovani kupci, posrednička provizija prema uvjetima poslovanja iznosi 3% + PDV (25%), sveukupno 3,75% od kupoprodajne cijene.
Sve pravne detalje ili informacije o agencijskoj proviziji, kao i Zaštita osobnh podataka, možete pronaći na sljedećim poveznicama:
Prilikom planiranja imajte na umu da su mnoge nekretnine tijekom sezone od 15. svibnja do 30. rujna iznajmljene te stoga nisu mogući razgledi bez najave. (Razgledi su mogući u slučaju da je objekat slobodan ili kod smjene gostiju)
Molimo vas da na vrijeme dogovorite s nama planirane datume razgleda kako bismo pronašli rješenje za Vas. Hvala!
OPIS
Ova građevinska parcela na istočnoj obali Istre nudi izvrsnu priliku i za vlasnike-stanare i za investitore. S nesmetanim pogledom na more, mirnom lokacijom i odobrenom građevinskom dozvolom, napor planiranja je znatno smanjen – gradnja može započeti odmah.
Vaše prednosti na prvi pogled:
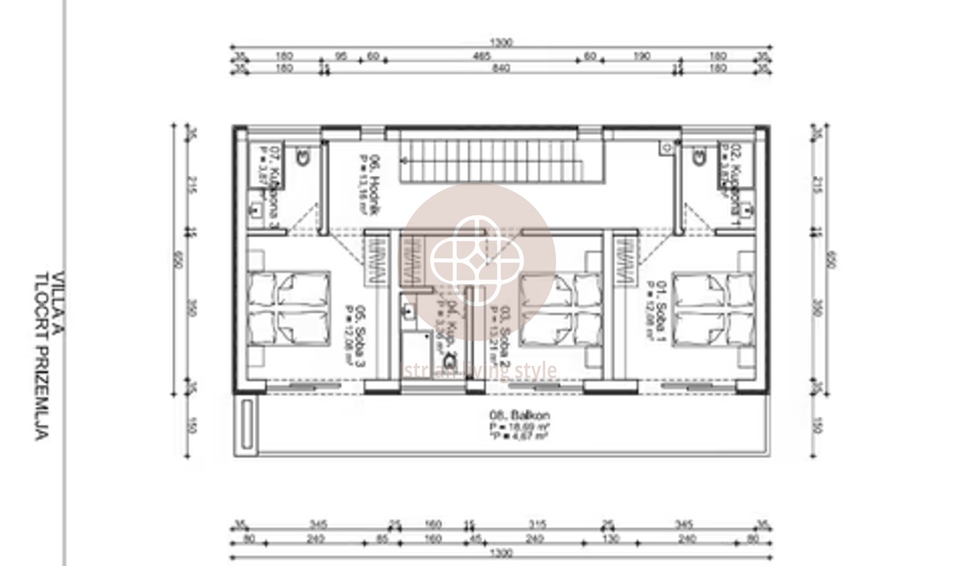
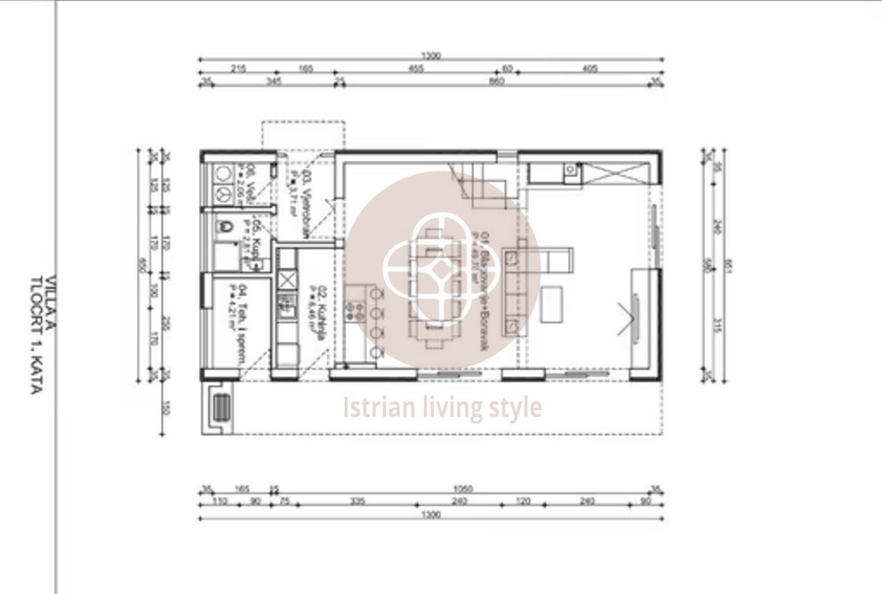
* Građevinska parcela od 729 m² s nesmetanim pogledom na more
* pripremljen projekt za elegantnu samostojeću kuću s bazenom
* Mirna, atraktivna lokacija s visokom kvalitetom života
* Samo oko 4 km do plaža istočne obale Istre
* Otprilike 17 km do Pule (zračna luka, restorani, kultura, kupovina)
Izvrsna infrastruktura: supermarketi, restorani, vinarije i regionalni dobavljači u neposrednoj blizini
Dodatna opcija:
Dostupna je susjedna parcela od 521 m², također s odobrenom građevinskom dozvolom za kuću s bazenom. Zajedno, obje parcele nude mogućnost razvoja većeg kompleksa ili kombiniranja vlasničkog stanovanja s najmom.
Zainteresirani? Pogledajmo zajedno nekretninu i okolno područje te raspravimo o svim mogućnostima. Veselimo se što ćemo vas upoznati!
LOKACIJA
KONTAKTIRAJTE AGENTA
